
試題1、用PLC進行控制線路的設計、模擬安裝與調試
1、根據題圖10鉆孔專用機床電路示意圖,用PLC進行控制線路的設計并且進行模擬安裝與調試。
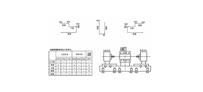
(1)工作原理
圖中左、右動力頭主軸電動機為M1,進給運動由液壓驅動,液壓泵電動機為M2,機床的工作循環為:首先起動液壓泵,按起動按鈕后夾緊工件→左、右動力頭同時快進并起動主軸→轉入工進加工→停留→分別快退→松開工件,停主軸……如此實現自動循環。
(2)控制要求:
① 工作方式設置為自動循環、單周。
② 有必要的電氣保護和聯鎖。
③ 自動循環時應按上述順序動作。
本題分值:35分
考核時間:240分鐘
考核形式:現場操作
具體考核要求:
1、電路設計:根據任務,設計主電路電路圖,列出PLC控制I/0口(輸入/輸出)元件地址分配表,根據加工工藝,設計梯形圖及PLC控制I/O口(輸入/輸出)接線圖,根據梯形圖,列出指令表。
2、PLC鍵盤操作:熟練操作鍵盤,能正確地將所編程序輸入PLC;按照被控設備的動作要求進行模擬調試,達到設計要求。
3、通電試驗:正確使用電工工具及萬用表,進行仔細檢查,通電試驗,并注意人身和設備安全。
題圖10 鉆孔專用機床
否定項說明:
1、 電路設計達不到功能要求,此題無分。